Conteneur Sanitaire de 10 Pieds (7,35 m²)
Les conteneurs sanitaires « standard » sont conçus pour offrir une solution fonctionnelle et représentative, adaptée à divers environnements tels que les chantiers de construction, les usines, ou lors d’événements. Leur design peut être personnalisé avec des couleurs spécifiques, des finitions laquées, ou des cadres de fenêtres et de portes adaptés.
Utilisation et Applications
Ces conteneurs sont idéaux pour fournir une zone sanitaire sèche, chaude, et confortable. Ils peuvent être installés dans des bureaux temporaires, sur des chantiers de construction, ou lors de grands événements. Le module est livré prêt à l’emploi et peut être équipé et meublé selon vos besoins spécifiques. Les options de personnalisation incluent l’ajout d’accessoires tels que des réservoirs de rétention d’eau et des passerelles d’accès.
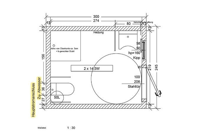
Dimensions Extérieures
Longueur : 3000 mm
Largeur : 2450 mm
Hauteur : 2750 mm
Dimensions Intérieures
Longueur : Voir croquis
Largeur : Voir croquis
Hauteur : 2500 mm
Construction
Cadre de transport : Profils courbés à froid en tôle galvanisée (0,5 mm)
Toiture : Feuille lisse galvanisée extérieure de 0,5 mm avec une pente de 2%. Isolation en laine minérale pressée de 100 mm.
Couverture : Plaque OSB de 15 mm avec finition en Rigips ou panneaux de PVC blanc.
Parois Intérieures : Feuille de trapèze galvanisée T6 avec couche de protection colorée des deux côtés, isolation en laine de façade pressée de 100 mm, finition en bois séchant ou panneaux PVC.
Parois de Cloisonnement : Construction en bois imprégné, plaque OSB de 12 mm, finition en laine d’isolation phonique ou panneaux PVC.
Sol : Tôle galvanisée de 0,5 mm, isolation en laine de façade pressée de 100 mm, plaque OSB de 22 mm, structure en bois et plancher en PVC.
Porte Extérieure : 1000 mm x 2060 mm, porte en acier.
Équipements Inclus
Chauffage : 1x chauffage électrique
Fenêtre : 1 fenêtre (L: 820 mm x H: 500 mm)
Éclairage : 2x lampadaires LED
Installations Sanitaires :
1x toilettes (adaptées aux personnes handicapées)
1x douche (accès de 3 cm, inachevé)
1x lavabo (accès adapté aux personnes handicapées)
1x chauffe-eau dans l’armoire
Équipement Standard
Ventilation : 1 stk. (naturelle)
Installation Électrique :
Ligne électrique et câble, en canaux en plâtre en continu. Prises électriques YDY 3 x 2,5 mm, systèmes d’éclairage des tuyaux JY 3 x 1,5 m.
Boîte de commande en PE avec boîtier hermétique ou fiche 16A – 32A CEE sur la paroi extérieure.
Boîte de distribution principale pour chaque circuit, avec fusible.
Double prises 230V.
2x éclairages LED 14,5 W.
1 stk. compteur électrique.
1 stk. chauffage électrique avec fusibles séparés.
Raccordements Eau et Eaux Usées : Installation complète dans les parois, évacuation des eaux usées en tuyaux de 110 mm, alimentation en eau PE32 avec vanne, tuyaux en PVC soudés.
Ce conteneur sanitaire est une solution compacte et efficace, idéale pour répondre aux besoins sanitaires dans divers environnements professionnels ou temporaires.
2,460.00€
Référence : SA1893688
Commentaires des clients
Online Sports Nutrition and Natural Dietetics.
Chances are there wasn't collaboration, communication, and checkpoints, there wasn't a process agreed upon or specified with the granularity required. It's content strategy gone awry right from the start. Forswearing the use of Lorem Ipsum wouldn't have helped, won't help now. It's like saying you're a bad designer, use less bold text, don't use italics in every other paragraph. True enough, but that's not all that it takes to get things back on track.
The villagers are out there with a vengeance to get that Frankenstein
You made all the required mock ups for commissioned layout, got all the approvals, built a tested code base or had them built, you decided on a content management system, got a license for it or adapted:
- The toppings you may chose for that TV dinner pizza slice when you forgot to shop for foods, the paint you may slap on your face to impress the new boss is your business.
- But what about your daily bread? Design comps, layouts, wireframes—will your clients accept that you go about things the facile way?
- Authorities in our business will tell in no uncertain terms that Lorem Ipsum is that huge, huge no no to forswear forever.
- Not so fast, I'd say, there are some redeeming factors in favor of greeking text, as its use is merely the symptom of a worse problem to take into consideration.
- Websites in professional use templating systems.
- Commercial publishing platforms and content management systems ensure that you can show different text, different data using the same template.
- When it's about controlling hundreds of articles, product pages for web shops, or user profiles in social networks, all of them potentially with different sizes, formats, rules for differing elements things can break, designs agreed upon can have unintended consequences and look much different than expected.
This is quite a problem to solve, but just doing without greeking text won't fix it. Using test items of real content and data in designs will help, but there's no guarantee that every oddity will be found and corrected. Do you want to be sure? Then a prototype or beta site with real content published from the real CMS is needed—but you’re not going that far until you go through an initial design cycle.




