Tiny House avec remorque 1 chambres – 1 salles de bain
Tiny House Construit en 2023. à l’intérieur comme à l’extérieur, tout en conservant les hauts plafonds, l’abondance de lumière et le plan d’étage ouvert pour lesquels nous sommes reconnus dans l’industrie.
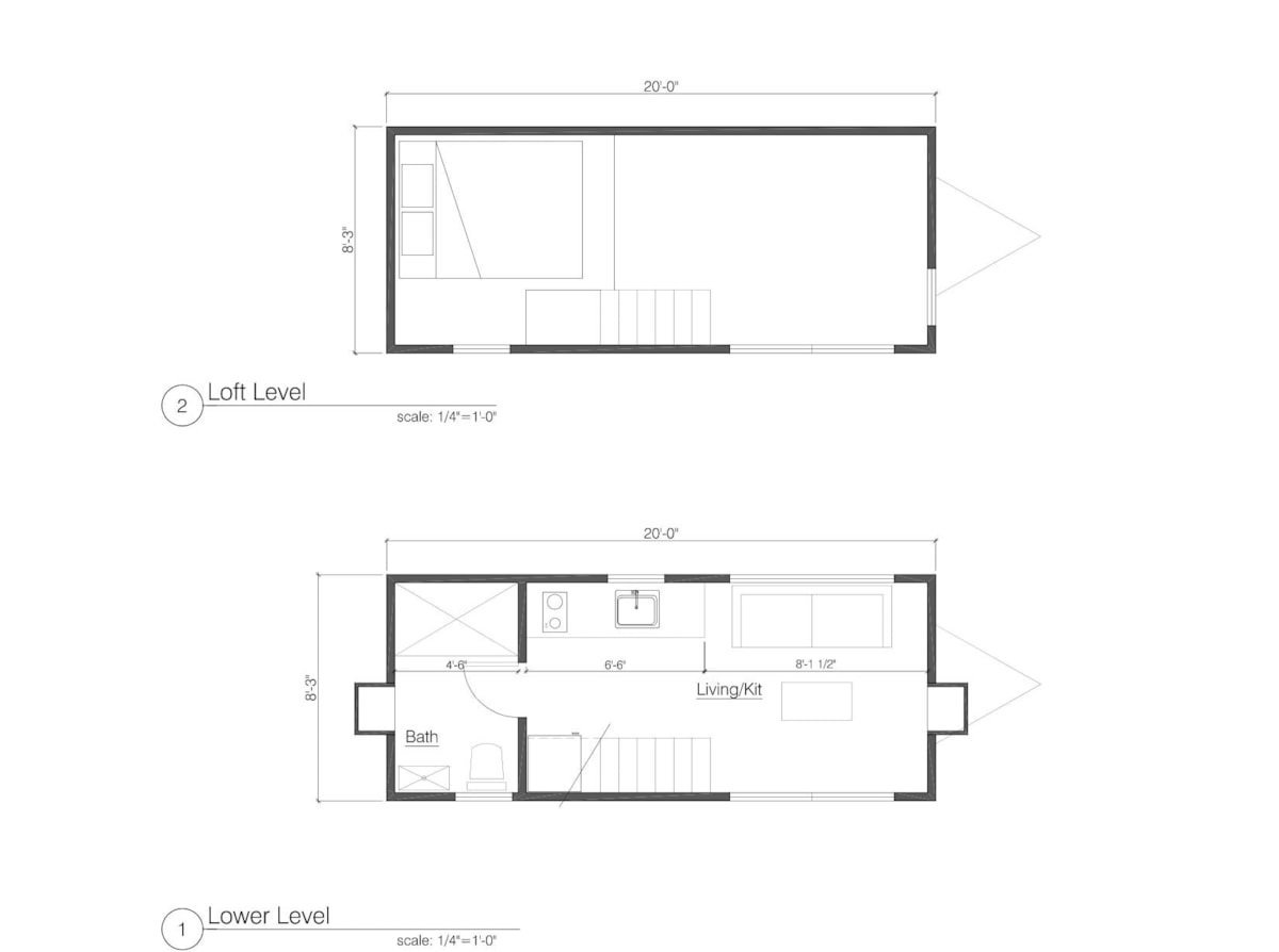
L’espace de vie présente un haut plafond de 10 pieds avec beaucoup de verre pour profiter de la lumière naturelle et de la vue sur l’extérieur. Le niveau principal mesure 8′-6« x 20′-0 », ce qui représente 170 m² d’espace habitable. La chambre loft mesure 6′-0« de large x 7′-6 » de long, soit 45 m², et peut facilement accueillir un matelas queen size. Le loft est accessible par un escalier avec des espaces de rangement.
Il dispose d’une salle de bain complète avec une grande douche de 30« x 52 » que vous ne trouverez pas dans la plupart des tiny homes. La cuisine est spacieuse avec un comptoir de 6′-6« et de la place pour un grand réfrigérateur de 24 » de large x 60 » de haut.
Cette unité est livrée clé en main avec toutes les installations et les appareils électroménagers inclus.
Châssis
20′-0« x 8′-6 » de large
Deux essieux de 7,000lb
Plancher
Sous-plancher T&G 3/4
Isolation en mousse pulvérisée à cellules fermées R-13
Plancher de vinyle sur pare-vapeur
Murs
Murs à colombages en bois 2×4
Revêtement T-111 3/4 » avec planche Hardie
Pare-vapeur avec enveloppe de maison
Isolation en mousse pulvérisée R-13
Finition en cloison sèche
Plafond
Chevrons de toit 2×6
Revêtement en contreplaqué
Barrière contre les fuites de toit pelable et autocollante
Toit métallique Galvalume 26ga
Isolation en mousse pulvérisée R19
Plafond en bois à recouvrement
Fenêtres et portes
Grande porte d’entrée en vinyle avec verre à impact
Toutes les fenêtres en vinyle avec verre à impact
Électricité
30amp 120v service
Plafonniers LED de 4 pouces
Climatiseur Pioneer de 12 000 btu avec chauffage
Plomberie
Alimentation en eau froide et chaude en Pex 1/2
Conduites d’eaux usées en PVC avec raccord de 3
Chauffe-eau au propane
Cuisine
Armoires Shaker grises
Dosseret en carrelage
Comptoir en quartz
Table de cuisson 2 brûleurs au propane en inox
Évier de cuisine en inox à une cuve
Robinet en acier inoxydable avec pulvérisateur extractible
Réfrigérateur en acier inoxydable
Salle de bain
Toilette à chasse d’eau
Meuble évier
Douche en céramique
Sol en galets
30,000.00€ Le prix initial était : 30,000.00€.16,000.00€Le prix actuel est : 16,000.00€.
Référence : CTFM16938
Commentaires des clients
Vous pourriez être intéressé par…
Online Sports Nutrition and Natural Dietetics.
Chances are there wasn't collaboration, communication, and checkpoints, there wasn't a process agreed upon or specified with the granularity required. It's content strategy gone awry right from the start. Forswearing the use of Lorem Ipsum wouldn't have helped, won't help now. It's like saying you're a bad designer, use less bold text, don't use italics in every other paragraph. True enough, but that's not all that it takes to get things back on track.
The villagers are out there with a vengeance to get that Frankenstein
You made all the required mock ups for commissioned layout, got all the approvals, built a tested code base or had them built, you decided on a content management system, got a license for it or adapted:
- The toppings you may chose for that TV dinner pizza slice when you forgot to shop for foods, the paint you may slap on your face to impress the new boss is your business.
- But what about your daily bread? Design comps, layouts, wireframes—will your clients accept that you go about things the facile way?
- Authorities in our business will tell in no uncertain terms that Lorem Ipsum is that huge, huge no no to forswear forever.
- Not so fast, I'd say, there are some redeeming factors in favor of greeking text, as its use is merely the symptom of a worse problem to take into consideration.
- Websites in professional use templating systems.
- Commercial publishing platforms and content management systems ensure that you can show different text, different data using the same template.
- When it's about controlling hundreds of articles, product pages for web shops, or user profiles in social networks, all of them potentially with different sizes, formats, rules for differing elements things can break, designs agreed upon can have unintended consequences and look much different than expected.
This is quite a problem to solve, but just doing without greeking text won't fix it. Using test items of real content and data in designs will help, but there's no guarantee that every oddity will be found and corrected. Do you want to be sure? Then a prototype or beta site with real content published from the real CMS is needed—but you’re not going that far until you go through an initial design cycle.





Avis
Effacer les filtresIl n’y a pas encore d’avis.